Дом из клееного бруса «ФД-212»

Комплектация
Фундамент
Стеновой комплект
Кровля

Каждый дом проектируется под конкретные условия участка и потребности семьи.
Стандартные параметры могут изменяться в зависимости от климата, грунта и ваших предпочтений.
Ниже приведены базовые характеристики, которые служат основой для расчетов.

[ Характеристики ]

[ 01 ]

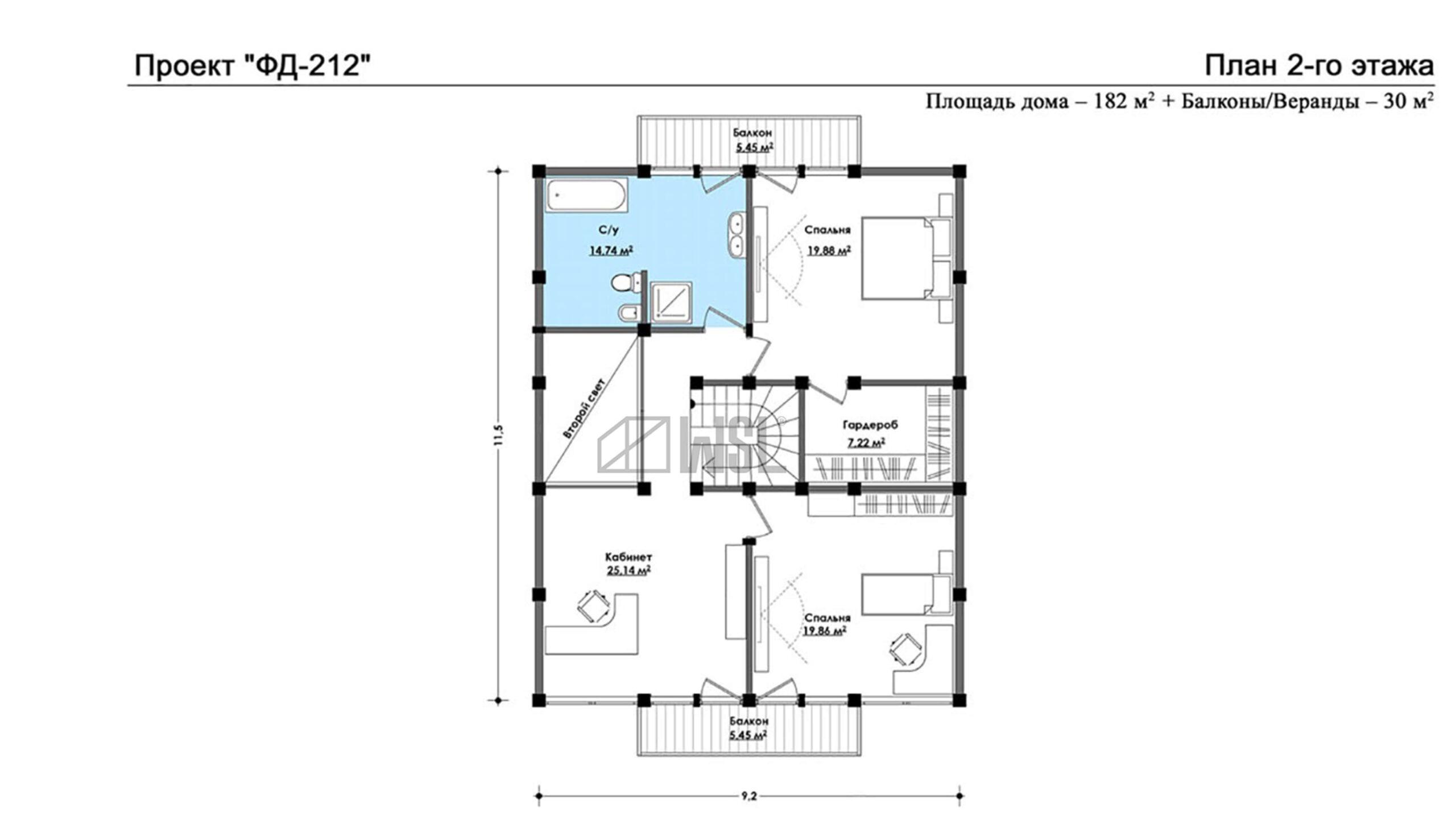
Площадь дома — 182 м2

[ 02 ]

Технология — Клееный брус

[ 03 ]

Линейные размеры — 9,2 x 11,5 м

[ 04 ]

Кол-во этажей — 2

[ 05 ]

Высота этажа — 2,7 м

[ 06 ]

Кол-во санузлов — 2

[ 07 ]

Кол-во спален — 2

[ 08 ]

Перечень типов помещений — холл, кухня, гостиная, спальня, гардероб, санузел

[ 09 ]

Дополнительные особенности — Балконы/веранды 30 м2; терраса 19,75 м2; балкон 5,45 м2; большая ванная 14,74 м2

Отправьте запрос и наш менеджер подготовит для вас персональное предложение, расчет стоимости данного проекта с учетом всех потребностей и пожеланий.


Готовы ответить на любой интересующий вас вопрос по выбранному проекту дома и предоставить консультацию.

[ Комплектация ]

Каждый проект комплектуется индивидуально, так как технические решения зависят от места строительства, а отделка и оснащение – от пожеланий клиента. В качестве отправной точки можно рассмотреть следующие характеристики.

[ Фундамент ]

Оптимальным для большинства условий фундаментом является мелкозаглубленный армированный ростверк. Подложка из утрамбованного песка 300 мм, минимальное заглубление бетонной части 200 мм, от 6 осей армирования 12 мм.

Варианты:

[ 01 ]

Плита по ростверку (Монолитная Ж/Б плита цокольного перекрытия)

[ 02 ]

УШП (Утепленная шведская плита)

[ 03 ]

Плита по сваям (для участков с близким уровнем грунтовых вод)

[ Стеновой комплект ]

Для своих проектов мы используем клееный брус с толщиной стены 202 или 242 мм.

Варианты сечений:

[ 01 ]

Стандарт: 202х190(h)мм, 242х190(h)мм

[ 02 ]

Салонный (премиум): 202х240(h)мм, 242х240(h)мм (с цельной ламелью)

[ 03 ]

Салонный (высокий): 202х270(h)мм, 242х270(h)мм (с шахматной переклейкой)

[ Кровля ]

Для деревянных домов подходит любой тип кровли. Выбор отделочного материала зависит от угла наклона кровли, наличия рядом с домом деревьев и эстетических предпочтений клиента. В качестве отправной точки можно рассматривать мягкую кровлю американских, либо финских производителей с утеплением 200 мм, снегозадержанием и металлической водосточной системой.

Варианты:

[ 01 ]

Мягкая кровля

[ 02 ]

Цементно-песчаная черепица

[ 03 ]

Фальц

[ 04 ]

Натуральная черепица

[ 05 ]

Металлочерепица (следует учитывать шумность данного покрытия при дожде и перепадах температуры).

Узнать стоимость проекта

Мы специализируемся на индивидуальном дизайне. Этот проект, как и все остальные, вы можете оставить без изменений, либо выбрать в качестве основы для своего уникального проекта. Оставьте заявку, и мы поможем вам создать дом исходя из ваших предпочтений.

    Нажимая кнопку "Отправить", вы соглашаетесь на обработку персональных данных в соответствии с
    Политикой конфиденциальности

    Наверх